Uptown Interlomas
Estilo, elegancia, practicidad y eficiencia en un conjunto que destaca por su situación estratégica en Interlomas y por una arquitectura impecable firmada por el prestigioso estudio internacional Bet Arquitectura.
Con las mejores calidades y una excelente distribución del espacio, está pensado para brindarte el máximo confort para ti y tu familia.

Vive tu sueño en Uptown
El diseño y funcionalidad son la seña de identidad de estos departamentos.
Su excelente distribución permite aprovechar cada metro de la vivienda con espacios desde los 156m2 hasta los 381m2.
Con una orientación y unas vistas inigualables, vive tu sueño en Uptown desde 6.3 MDP*
* En opción de pago al contado
Sala y Comedor
El amplio salón-comedor es el punto de encuentro de la vivienda. Diseñados para crear un ambiente espacioso y luminoso, su excelente distribución aprovecha cada m2.
Cocina
Cuidadosamente estudiada, se integra con armonía en el espacio al tiempo que favorece una circulación sin obstáculos, haciéndola muy funcional y práctica.
Recámara
Ofrecen de inmediato un sentimiento de bienestar y comodidad sin renunciar a un equipamiento completo con vestidor y baño en la recámara principal y con closet y baño en la segunda y tercera recámara.
Viviendas disponibles en preventa
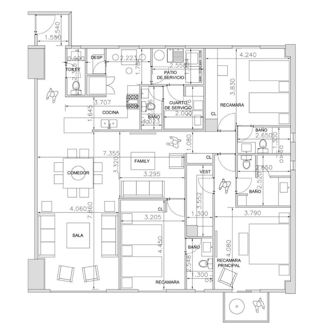
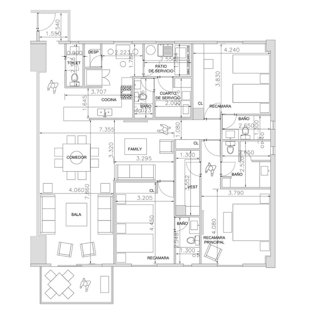
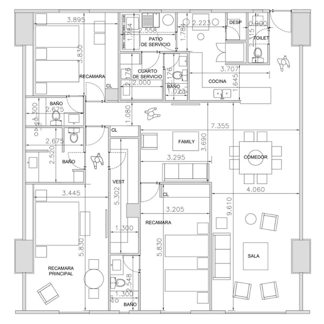
192,8m2 | ver plano | interior de 184,8 m2 | 8,0 m2 de terraza | 3 recámaras | 4 + 1/2 baños | 2 disponibles | |
167,9m2 | ver plano | interior de 156,5 m2 | 11,5 m2 de terraza | 3 recámaras | 4 + 1/2 baños | 2 disponibles | |
184,8m2 | ver plano | interior de 162,2 m2 | 22,7 m2 de terraza | 3 recámaras | 4 + 1/2 baños | 1 disponibles | |
188,3m2 | ver plano | interior de 184,8 m2 | 3,5 m2 de terraza | 3 recámaras | 4 + 1/2 baños | 1 disponibles | |
165,6 m2 | ver plano | interior de 162,2 m2 | 3,5 m2 de terraza | 3 recámaras | 4 + 1/2 baños | 4 disponibles | |
381,8 m2 | ver plano | interior de 127,9 + 172,5 m2 | 81,4 m2 de terraza | 3 recámaras | 4 + 1/2 baños | 3 disponibles | |
170,2m2 | ver plano | interior de 162,2 m2 | 8,0 m2 de terraza | 3 recámaras | 4 + 1/2 baños | 3 disponibles | |
156,5m2 | ver plano | interior de 156,5 m2 | Sin terraza | 3 recámaras | 4 + 1/2 baños | 2 disponibles | |
178,9m2 | ver plano | interior de 178.9 m2 | Sin terraza | 3 recámaras | 4 + 1/2 baños | 1 disponibles |
Viviendas disponibles en preventa
Todo lo que te mereces
Tu casa no está completa sin todos los espacios de recreación que la complementan.
En UPTOWN hemos dedicado mucho esfuerzo en hacer del edificio, un proyecto integral que conjunte departamentos y espacios de relajación y juego con los mejores amenities.
Amenidades
Alberca
Gimnasio
Jacuzzi
Ludoteca
Chapoteadero
Salón de Adultos
Asoleadero
Salón de Fiestas
Spa
Áreas Verdes
Servicios
Lobby
Estacionamiento
Motor Lobby
Estacionamiento Visitas
Oficinas
Planta de Emergencia
CCTV
Planta de Tratamiento
Vigilancia
Ducto de Basura
Mirando al futuro
La ubicación de nuestra promoción está dentro de un ambicioso plan urbanístico ya aprobado.
Destacan dos importantes mejoras que harán que tu inversión obtenga una gran plusvalía en pocos meses:
- Ampliación de la calle Jesús del Monte hasta el cruce con la calle Adolfo López Mateos (ver línea azul del mapa).
- Creación de una vía alterna nueva paralela a la Carretera Federal 57D y que descongestionará el tránsito de toda la zona. (ver línea amarilla del mapa).

Viviendas disponibles en preventa
Entrega de viviendas en julio 2024
Facilidades de pago
Realiza un cómodo enganche y luego paga 30.000 pesos cada mes. Te ayudamos a tramitar tu crédito bancario
Plusvalía
Compra una de las últimas viviendas disponibles y verás cómo tu inversión no para de crecer una zona de gran futuro.
Ubicación
A sólo 10 mins, de Santa Fe y 5 mins. De Paseo Interlomas, Parque Interlomas y del hospital Ángeles Lomas.
Su fantástica ubicación te permitirá disfrutar de todos los servicios de la capital, mientras que sus espectaculares viviendas marcan un nuevo estándar de diseño y calidad para un vecindario en constante modernización.
Nos encontramos sobre la avenida Jesús del Monte #163, Huixquilucan, Estado de México, C.P. 52764.
Contáctanos
Déjanos tus datos y te contestaremos a la brevedad.
Contacta a un asesor
56 2523 8264Contacta a un asesor
56 2523 8264Envíanos un correo
ventas@betarquitectura.comHorarios de atención
L-D de 9:00 a 17:00








